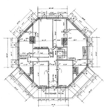
The Octagon House is one of Virginia’s rarest and most unique domestic structures. While rare in its combination of architectural styles, the extensive trompe l’oeil marbelizing, stenciling, graining, and murals throughout the home elevate the structure’s historic significance. In contrast to the long-established architectural orders of the time, the mansion style demonstrated a type of defiance and rebellion by combining multiple architectural styles. A style of its own which represented the changing and tumultuous period leading up to the Civil War. Please see floor plans below.
The octagonal shape presented multiple challenges in design and construction...

